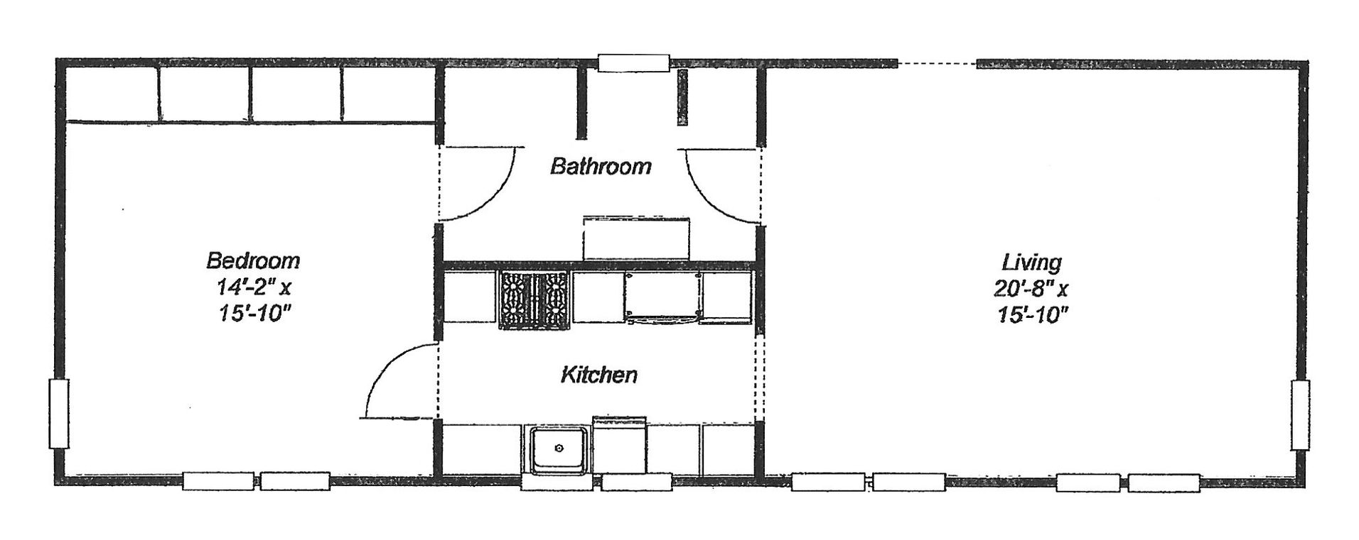
Home Information
1 Living Room
1 Bedrooms
1 Bathrooms
840 Sq Ft
Just -Sold!
About Us
idwelling.com is the storefront for The Innovative Living Line of high quality, Right Sized Accessory Dwelling Units (ADU's) and Small Homes for a simple lifestyle, rental, or age in place dwelling, by Cedar Creek Builders Inc.
Cedar Creek Builders historically served as an independent custom home builder. Additionally, we were a site development contractor for manufactured and modular housing centers in East Texas including Clayton Homes, Pratt Homes, Tandem Homes, and American Homes. We had our right foot, so to speak, in one world (custom home building) and our left foot in another (sub-contracting for manufactured and modular home centers).
This background has shaped the evolution of our concept for idwelling.com. Our goal is to bridge the gap between manufactured and site-built construction methods, creating a Boutique Builder of Heritage Homes and Accessory Dwellings which will fit most lifestyles and can be delivered to your home site at an affordable price.
























